



現地上空地上45mより撮影(2025年3月撮影)
-
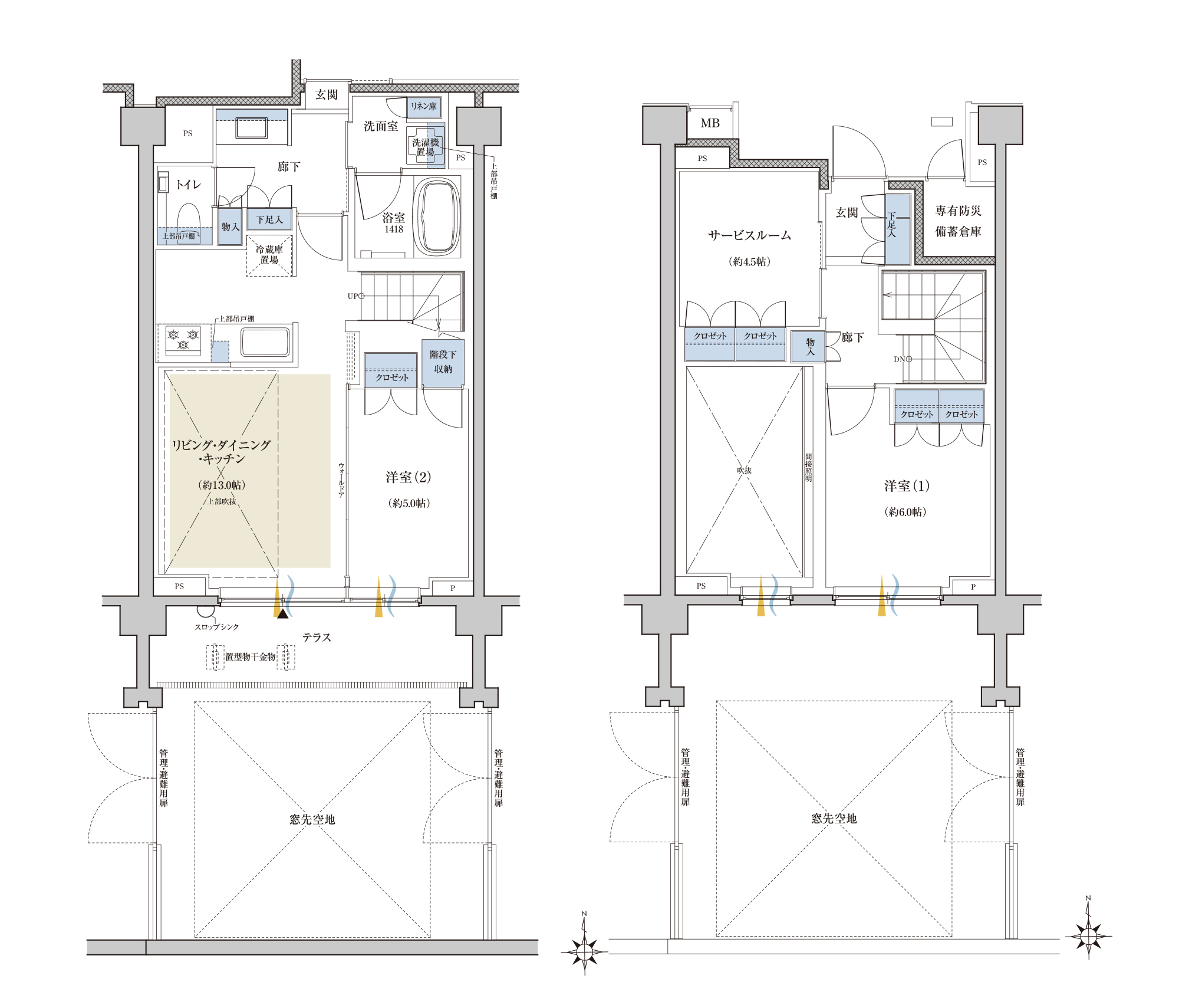
Dtype
メゾネット
(1・2階) -
2LDK+S
■合計専有面積/79.01㎡(約23.90坪)
■住戸専有面積/77.24㎡(約23.36坪)
■専有防災備蓄倉庫面積/1.77㎡(約0.53坪)
■テラス面積/33.57㎡(約10.15坪)
1F
2F


SIC=シューズインクローク
※掲載の間取りは設計段階のものであり、今後変更になる場合があります。