



現地上空地上45mより撮影(2025年3月撮影)
-
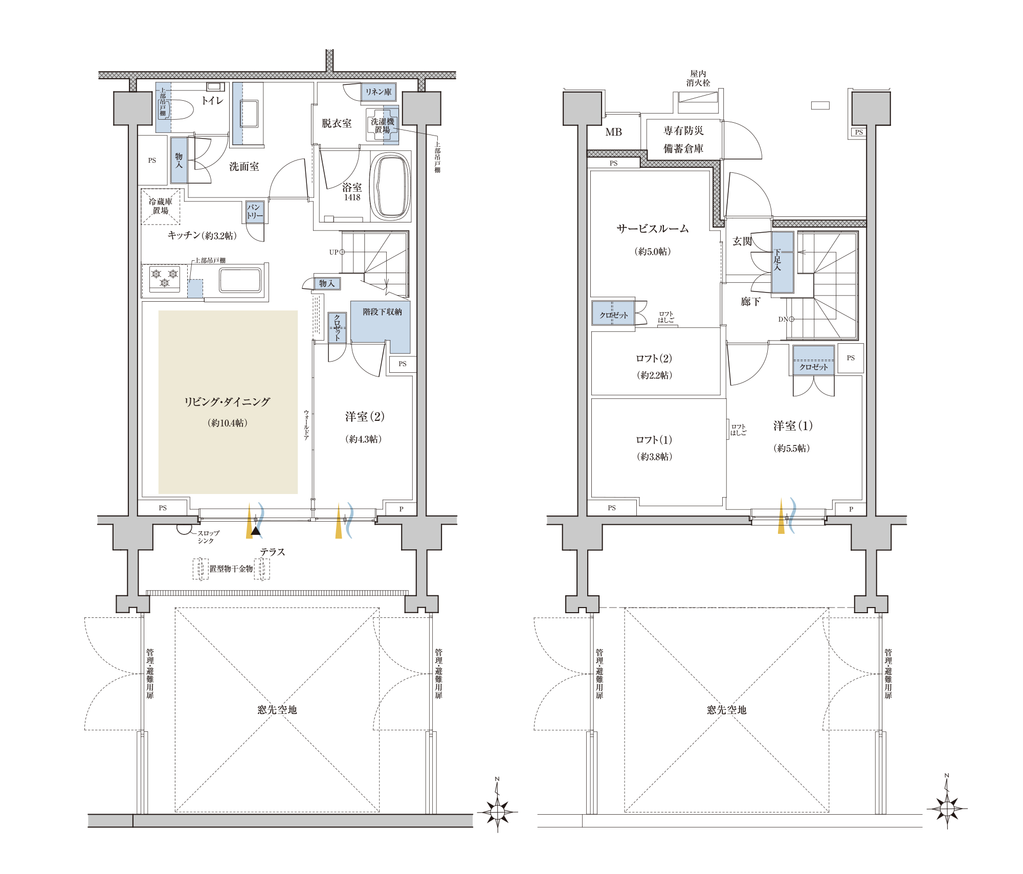
Ftype
メゾネット
(1・2階) -
2LDK+S+2ロフト
■合計専有面積/76.22㎡(約23.05坪)
■住戸専有面積/74.90㎡(約22.65坪)
■専有防災備蓄倉庫面積/1.32㎡(約0.39坪)
■テラス面積/33.27㎡(約10.06坪)
1F
2F


SIC=シューズインクローク
※掲載の間取りは設計段階のものであり、今後変更になる場合があります。